200㎡四室居所,承载三代同堂的其乐融融

2021-08-25

空间不仅是生活的容器,更是连接家人情感的时光机,承载了一家人四季更迭的美好回忆。

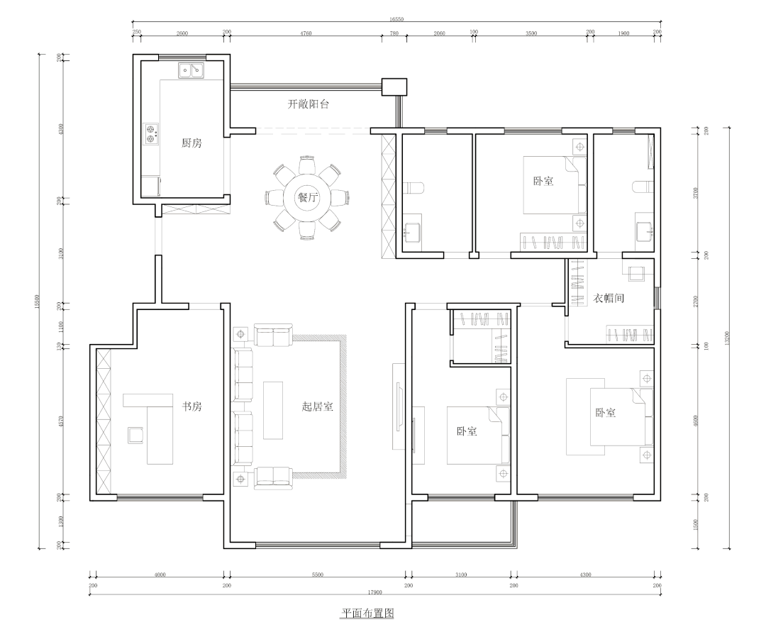
这是一套三代同堂的居所,200㎡四室两厅双卫大平层,给业主的大家庭合理布局了一个动静分离、功能齐全的生活空间,互相能够得到更多陪伴的同时又能各自独立,互不干扰,承载着三代同堂的其乐融融。

本案以新中式+现代轻奢为主调,暖黄色调营造家庭的温暖氛围,配以简单的新中式家具和精致高级软装,让一家人的感情在此升温。

 

 

客厅主打新中式格调,室内阳台让客厅空间更大,活动范围更自由,宽敞舒适的布艺沙发适合全家人劳累后放松、发呆、一起度过居家时光。

暖黄色瓷砖地面、原木色饰面墙、金属质感的吊顶设计,使家人沉浸在温暖的氛围当中。

电视背景墙结合多功能收纳设计,可作为艺术品展示架,或者常用物品的收纳空间,实用性更强。

 

 

餐厅一面结合多功能收纳设计,可用作酒柜,可用作艺术品展示架,或是常用物品的收纳空间,功能性与装饰性兼备,尽显主人高级品位。

中式传统圆桌,更符合多人用餐环境,平淡的日子,有了美食、家人相伴,幸福的烟火气被点燃。

 

 

厨房墙面地面通铺灰色系防污防滑瓷砖,保持色调统一,也能更好清洁。壁挂式橱柜增加了收纳空间,同时在下方设置灯带也能为烹饪时提供更明亮的视野,方便操作。

 

 

三房的设计更加强调独立性,有人早起,有人晚归,却没有打乱生活的困扰,刚刚好的距离,让每一代人都各得其所。

 

 

三个卧室使用面积均等规划,保证了每个家庭成员都有足够的私密空间。整体采用同种风格设计,却根据不同的使用者和使用环境,分别采用了不同质感的木纹砖,温润细腻,触感舒适,打造和而不同的空间效果。

 

 

新中式茶室与书房的结合,用水墨京砖打造了一个心灵“净”地,无需华丽的装饰,简单的布局就能让心灵放松。

 

 

双卫浴的合理布局使三代同堂之家生活更自由。空间干净利落,整体的色调,简单的陈设,主卫浴配备浴缸,客卫浴做了干湿分离,合理考量每个人生活习惯,一家人生活更融洽。

 

 

在线咨询

在线咨询

咨询获取更多产品零售信息和资料以及产品画册

为了您的隐私安全,您的信息将被严格保密