鹰牌2086全屋设计方案 |留白的时尚简约,是无尽的奇思遐想

2019-04-09

书画有留白,意悠远深邃

文学有留白,不着一字,尽得风流

戏剧有留白,三五步走遍天下,七八人百万雄师

 

 

山河有留白,天地浩然宽广,不可杖测

音乐有留白,绕梁三日,美不胜收

人生有留白,不以物喜,不以己悲

 

 

纯白、安全、洁净、无瑕,鹰牌2086女神系列打造家居空间的留白,是视觉的开阔,是心灵的慰藉,也是生命的寄托。

 

女神系列-全屋设计方案

 

 

 

鹰牌2086客厅以白色为主色调,搭配灰色系布艺软装,营造层层递进的高级时尚感,大大的阳台落地窗,干净的白色系地砖与墙砖,空间干净开阔,打造无拘无束的自由空间。

 

 

 

鹰牌2086厨房是经典的黑白灰色调,线条简约的橱柜和桌椅,简单大气。书房用自然的原木元素和木纹砖,营造禅意宁静的阅读办公空间。

 

 

 

鹰牌2086卧室是温馨的暖黄色调,女神系列作为背景墙,宛若一幅水墨画,宁静,高雅,无论搭配灰色系地砖还是木纹砖,都恰到好处。

 

 

 

卫浴间用大面积的灰色搭配简约的白色,几何元素的运用增添空间的高级感。同时,用圆形镜子增加空间柔和感,用明亮的彩色装饰画营造空间跳跃性。

 

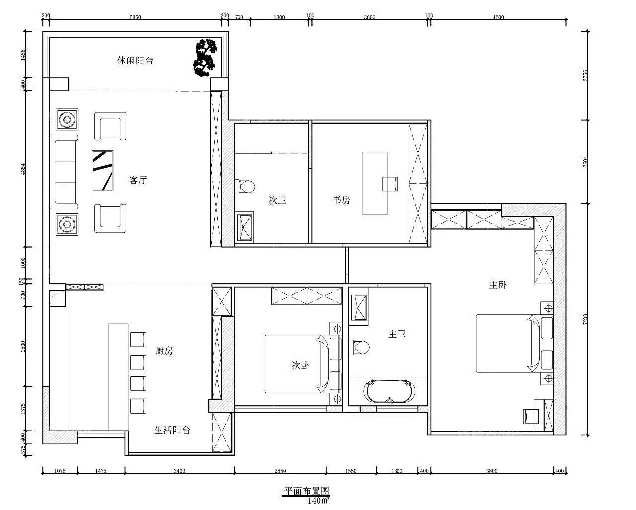
/ / /  户型图 / / /

 

▲平面布置图

 

▲鸟瞰图

 

▲鸟瞰图

 

 

▲用砖方案

 
在线咨询

在线咨询

咨询获取更多产品零售信息和资料以及产品画册

为了您的隐私安全,您的信息将被严格保密